Minicarregadeira skid steer JC45V
Minicarregadeira skid steer de rodas com capacidade nominal de operação de 850kg para terrenos acidentados e canteiros de obras
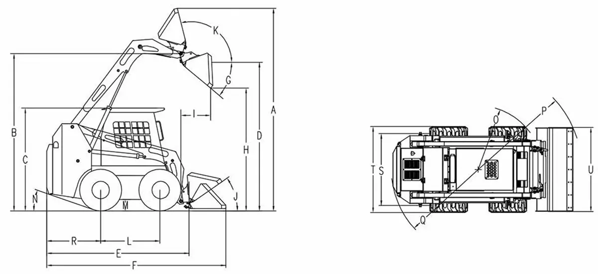
- Peso operacional
3200kg - Carga nominal
850kg - Capacidade da caçamba
0.45m³ - Velocidade máxima
12km/h























